This summer we have a really exciting long-term let studio development opportunity becoming available at Livingston Studios in Wood Green. The complex has a large first floor area, currently used as storage, which we are looking to develop into a long-term let facility that will have a number of different room combinations and layouts. The new studio facilities will benefit from natural light and high ceilings. If you are a label, production company or other entity looking for your own private studio facility then this might be the perfect chance for you to claim one!
To build the rooms we are looking for an 18 month rent down payment from prospective tenants. In return your will get the rooms built to your own specification and secure a long tenure on the space.
To find out more visit the official Wood Green long-term let page, and contact nick@miloco.co.uk to make further enquiries.
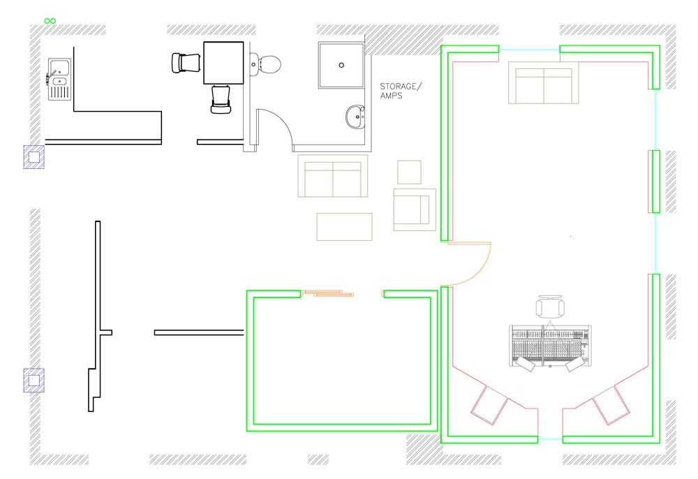
View the floor plans below to get a feeling of what can be built upstairs at Livingston The total floor space will be approximately 72 m sq with approximately 58 m sq os usable space after sound proofing.
Approximate plan for a 3 room combination

Approximate plan for a 4 room combination




Stay in the loop
Follow @milocostudios
Subscribe to Miloco News